关于黄山区雷笋产地冷藏保鲜设施建设项目规划建筑方案的公示
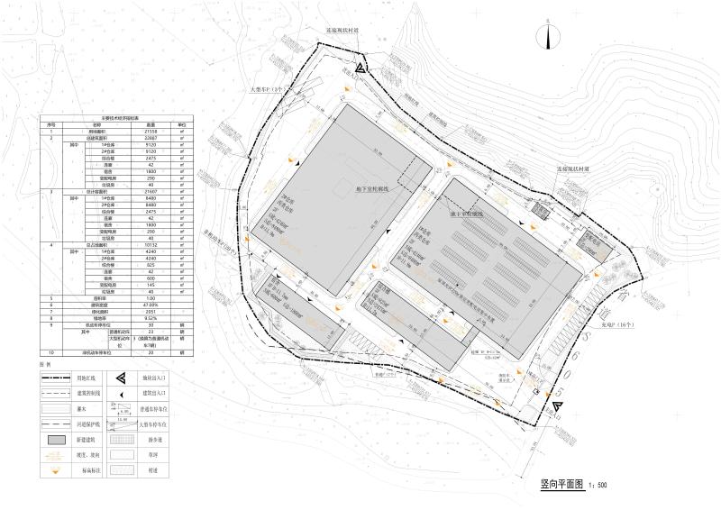
黄山区雷笋产地冷藏保鲜设施建设项目位于新华乡董家湾村,建设单位为新华乡董家湾村村委会。项目土地所有权性质为集体建设用地,用地性质为仓储用地,用地面积21558平方米。现项目规划两栋仓库、一栋综合楼、一栋宿舍楼,总计容建筑面积21607平方米,容积率1.0。
根据相关规定,现将规划方案图予以公示,如有意见和建议,请在公示期间内向我局反馈。
公示地点:
1、现场公示:拟建建筑现场
2、固定场所公示:黄山区自然资源和规划局大楼六楼公示栏
3、黄山区政府网:(http://www.hsq.gov.cn/dwzw/tztg/index.html)
公示日期:七个工作日(2025.10.9——2025.10.14)
联系电话:0559—8532458
黄山区自然资源和规划局
2025年10月9日
(撰稿人:查士藩 审核人:许晓祥)
附:规划相关图纸。







皖公网安备 34100302000001号
不良信息举报