关于东黄山B-02-09地块酒店项目规划建筑方案的公示
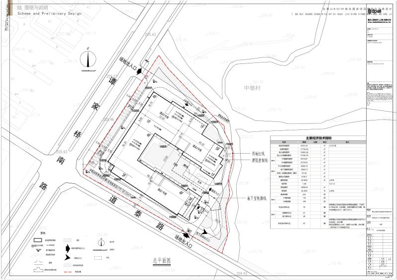
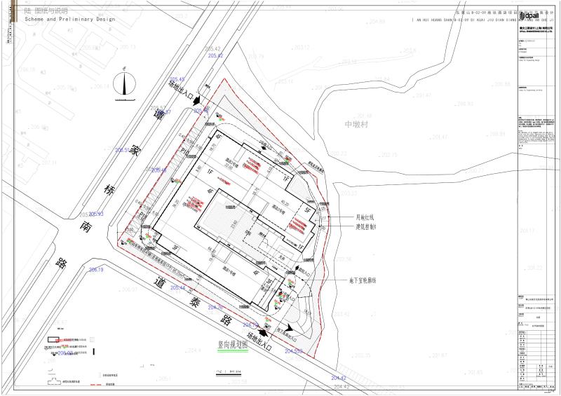
东黄山B-02-09地块酒店项目位于黄山区谭家桥镇谭家桥南路与道泰路交叉口东侧,建设单位为黄山良誉文化旅游开发有限公司。项目用地性质为商业用地,用地面积9301.62平方米。现项目规划两栋建筑,总建筑面积17792.40平方米,总计容建筑面积13705.70平方米,容积1.48。
根据相关规定,现将规划方案图予以公示,如有意见和建议,请在公示期间内向我局反馈。
公示地点:
1、现场公示:拟建建筑现场
2、固定场所公示:黄山区自然资源和规划局大楼六楼公示栏
3、黄山区政府网:(http://www.hsq.gov.cn/dwzw/tztg/index.html)
公示日期:七个工作日(2025.11.14——2025.11.24)
联系电话:0559—8532458
黄山区自然资源和规划局
2025年11月14日
(撰稿人:查士藩 审核人:许晓祥)
附:规划相关图纸。








皖公网安备 34100302000001号
不良信息举报