关于芙蓉市场改造工程项目规划---4号店面调整方案的公示
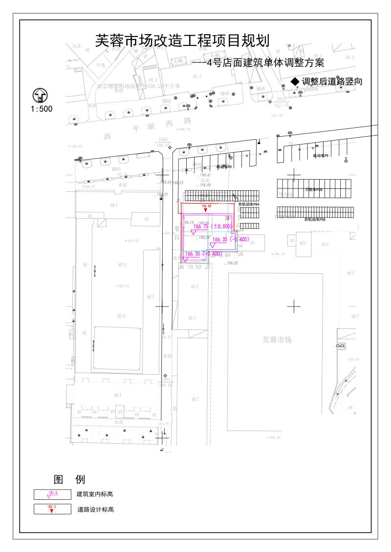
芙蓉市场改造工程项目位于黄山区甘棠镇芙蓉市场,建设单位为黄山市黄山区平湖商业有限公司。地块用地性质为商业用地,用地面积约426.21平方米,原方案于2025年1月批复。
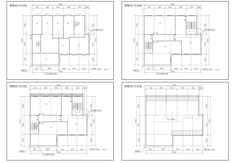
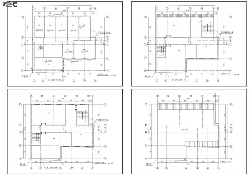
现建设单位根据现行规范和使用要求申请对项目建筑单体方案进行调整优化。主要调整内容如下:
1、将层高由原设计一层3.3m,二层、三层3.0m调整为各层均为3.6m;
2、将南边三间商铺一层室内标高降低;
3、将东南角处外墙改为与南侧现状建筑外墙面平齐。
调整前后项目的建筑面积、计容面积、容积率不变。
根据有关规定,现将调整前后对比图予以公示,如有意见和建议,请在公示期内向我局反馈。
公示地点:
1、现场公示:拟建建筑现场
2、固定场所公示:黄山区自然资源和规划局大楼六楼公示栏
3、黄山区政府网:(http://www.hsq.gov.cn/dwzw/tztg/index.html)
公示日期:七个工作日(2026.2.3——2026.2.11)
联系电话:0559—8532458
黄山区自然资源和规划局
2026年2月3日
(撰稿人:蒋渊 审核人:许晓祥)
附: 规划相关图纸










皖公网安备 34100302000001号
不良信息举报