关于甘棠社区商贸综合服务楼项目规划调整方案的公示
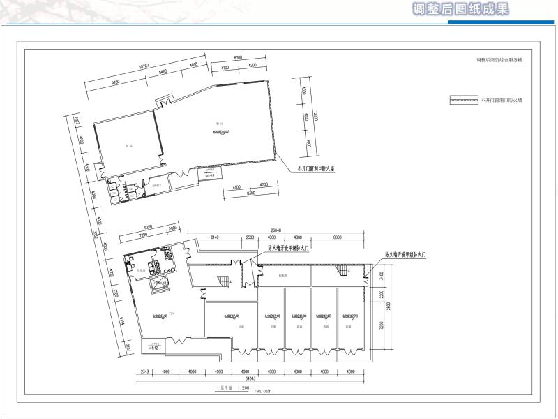
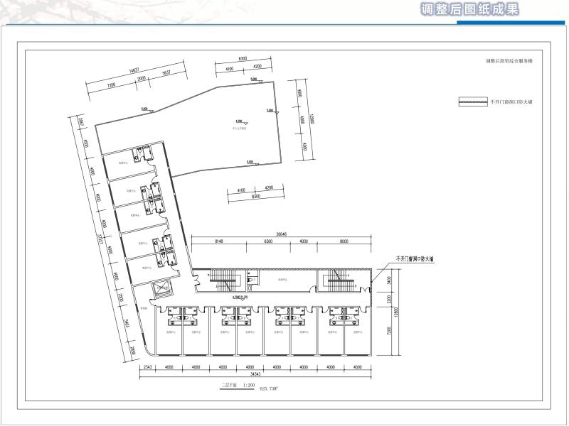
甘棠社区商贸综合服务楼项目位于黄山区平湖西路北侧,建设单位为黄山区甘棠镇甘棠社区居民委员会。地块用地性质为商业用地,用地面积约1712.0平方米。
主要调整内容如下:
1.取消负一层的地下消防水池和泵房;
2.单体北侧一层开间向西减少约6.6米;
3.餐厅东侧新设成品消防水池和泵房设施。
调整前总建筑面积:3904.77平方米,计容面积:3663.45平方米,容积率2.15,建筑密度55.4%,绿地率5.5%。调整后总建筑面积:3582.93平方米,计容面积:3582.93平方米,容积率2.1,建筑密度50.7%,绿地率5.5%。
根据有关规定,现将调整方案予以公示,如有意见和建议,请在公示期内向我局反馈。
公示地点:
1.现场公示:拟建建筑现场
2.固定场所公示:黄山区自然资源和规划局大楼六楼公示栏
3.黄山区政府网:(http://www.hsq.gov.cn/dwzw/tztg/index.html)
公示日期:七个工作日(2026.3.20—2026.3.30)
联系电话:0559-8535190
黄山区自然资源和规划局
2026年3月20日
(撰稿人:蒋渊 审核人:许晓祥)
附: 规划相关图纸










皖公网安备 34100302000001号
不良信息举报