关于胜泰竹木制品加工厂房建设项目修建性详细规划方案的公示
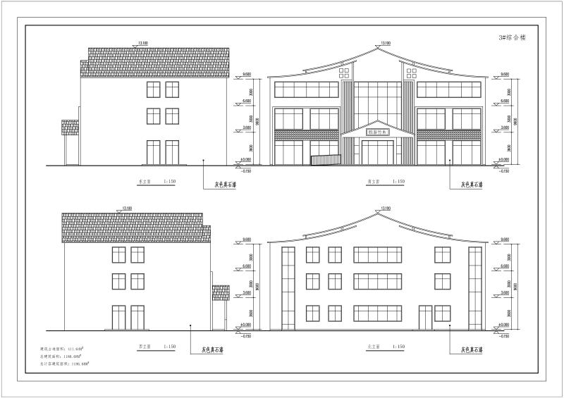
胜泰竹木制品加工厂建设项目位于仙源镇弦歌村,总用地面积11551.76㎡,用地性质为工业用地,总建筑面积4725.92㎡,总计容面积12672.04㎡,容积率1.1,建筑系数40.9%,绿地率2%。
根据有关规定,现将规划方案图予以公示,如有意见和建议,请在公示期内向我局反馈。
公示地点:
1、现场公示:拟建建筑现场
2、固定场所公示:黄山区自然资源和规划局大楼六楼公示栏
3、黄山区政府网:
(http://www.hsq.gov.cn/dwzw/tztg/index.html)
公示日期:七个工作日(2025.1.21——2025.2.5)
联系电话:0559—8532458
黄山区自然资源和规划局
2025年1月21日
(撰稿人:蒋渊 审核人:许晓祥)
附:规划相关图纸。







皖公网安备 34100302000001号
不良信息举报