关于甘棠社区汪家新村二期规划方案的公示
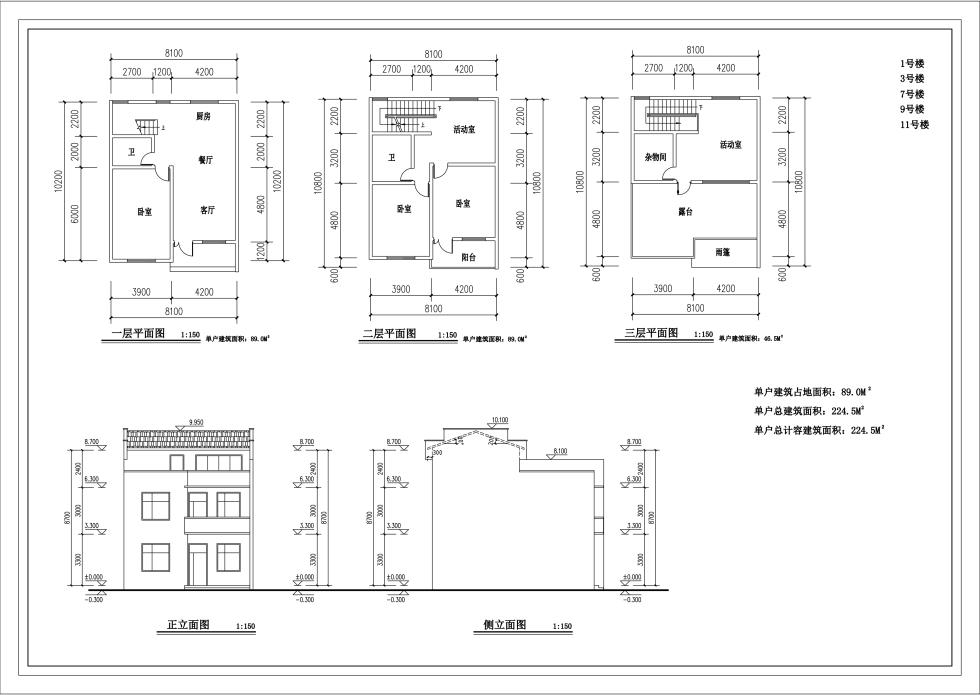
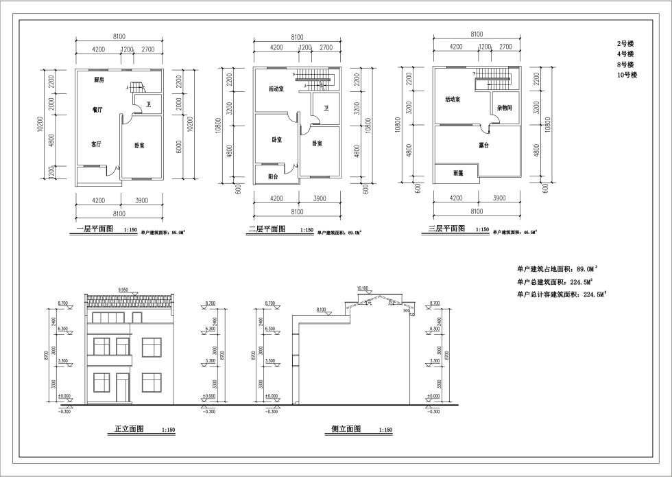
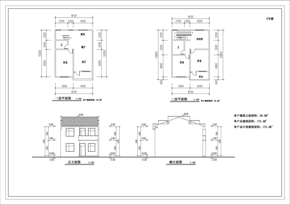
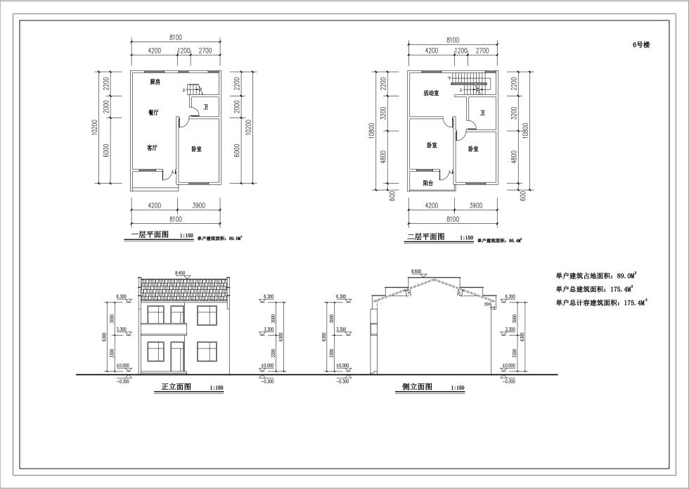
甘棠社区汪家新村二期项目位于甘棠镇322省道东侧。建设单位为黄山区甘棠镇甘棠社区居民委员会。该项目使用集体建设用地,规划建设用地面积:3194.25平方米,总建筑面积:2371.30平方米。共安置11户,每户占地面积89平方米,每户建筑面积:175.4至224.5平方米。
根据有关规定,现将规划方案图予以公示,如有意见和建议,请在公示期内向我局反馈。
公示地点:
1、固定场所公示:
(1)甘棠镇甘棠社区居民委员会公示栏
(2)黄山区自然资源和规划局大楼六楼公示栏
2、黄山区政府网:(http://www.hsq.gov.cn/dwzw/tztg/index.html)
公示日期:七个工作日(2024.3.4——2023.3.12)
联系电话:0559—8532458
黄山区自然资源和规划局
2024年3月4日
(撰稿人:陈冬发 审核人:许晓祥)
附: 规划相关图纸








皖公网安备 34100302000001号
不良信息举报